Overview

6 Tarneit Road is a 781m2 development site located within walking distance to the Werribee CBD, Train Station and within close proximity to the Duncans Road Freeway Interchange, Werribee Open Range Zoo, State Rose Garden and Werribee Masion as well as other nearby amenities.

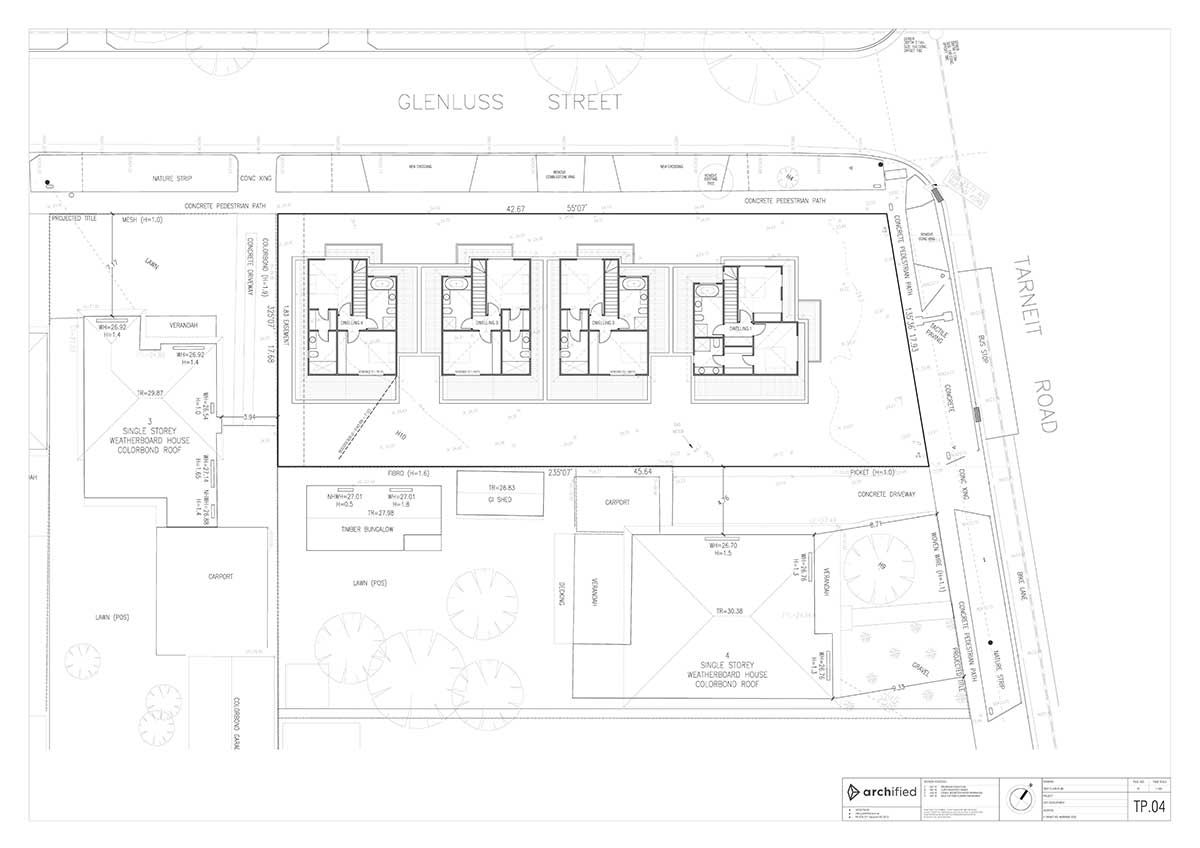
We recently obtained a planning permit and endorsed plans for four individually titled 2-bedroom, 2-bathroom, single-car garage modern townhouses, which will set a new standard for Werribee.

With significant investment being undertaken in the Werribee township, including the Cherry Street Level Crossing Removal Project, upgrade of the Duncans Road Freeway Interchange and the Werribee CBD Catalyst Sites, now is the perfect opportunity to secure a quality home in this gentrifying and evolving suburb.

Construction commencing soon!

Project

6 TARNEIT ROAD, WERRIBEE

Client

XYZ

What We Did

Property Development & Project Management

Leave a Reply